Tocha

Categoria
Contemporâneo, Para Venda
Acerca do Projecto

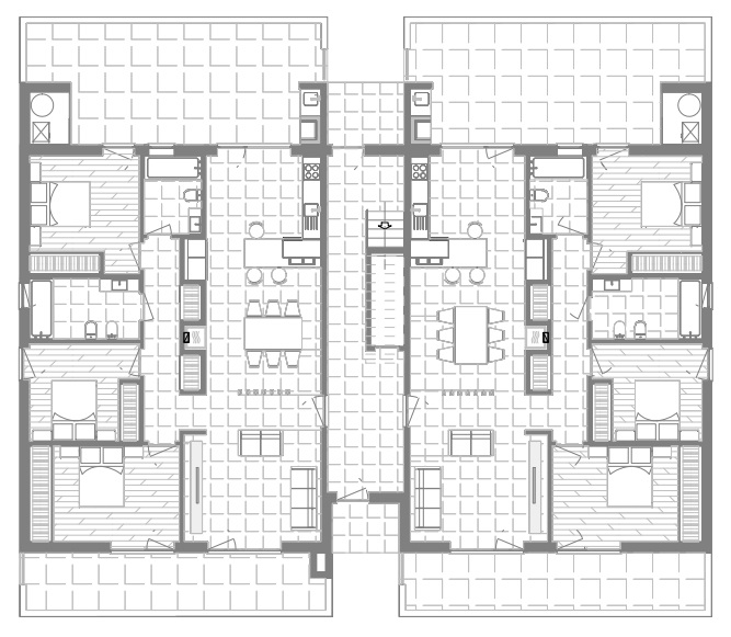
Edifício constituído por 4 apartamentos T3, todos eles com aparcamento e garagem individual.

Localizado próximo da Vila da Tocha em zona residencial calma, onde os serviços essenciais como padarias, supermercados, escolas entre outros se encontram nas proximidades.

Uma boa opção, a 5 minutos do centro da vila e 5 minutos da A17